4. Предохранители
Если какое-либо электрическое устройство не работает, возможно, перегорел соответствующий предохранитель. В этом случае рекомендуем провести проверку в соответствии с описанным ниже порядком и при необходимости заменить предохранитель:
1. Выключите все электрические устройства.
2. Переведите выключатель зажигания в режим LOCK, активируйте стояночный тормоз и отсоедините провод от отрицательной клеммы аккумуляторной батареи.
3. Предохранители расположены в следующих местах:
- В блоке предохранителей моторного отсека.
Чтобы открыть крышку блока предохранителей, зажмите два фиксатора крышки и затем потяните крышку вверх.
- В приборной панели рядом с рулевым колесом.
Для доступа необходимо снять крышку.
Внимание
Не допускайте попадания воды и других жидкостей в блок предохранителей во избежание повреждения электрических компонентов.
После установки крышки блока предохранителей убедитесь, что она правильно зафиксирована. В противном случае попадание в блок воды и грязи может нарушить работу предохранителей.
4. Используя предохранительный зажим, поставляемый в комплекте с автомобилем, извлеките предохранители.
Согласно обозначениям на предохранителях найдите предохранитель неисправного электроприбора. Проверьте его.
Внимание
Предохранительный зажим и запасные предохранители находятся в крышке блока предохранителей моторного отсека.
В блоках предохранителей в моторном отсеке и в приборной панели есть этикетки предохранителей. С помощью них можно установить соответствие между предохранителями и электрическими компонентами.
Прежде чем подтвердить, что именно перегоревший предохранитель является причиной неполадки, следует проверить все предохранители и заменить все перегоревшие. Если не удается выяснить причину неисправности, обратитесь в официальный сервисный центр.
5. Проверьте состояние плавкой вставки внутри предохранителя. Если она перегорела, его необходимо заменить запасным предохранителем с таким же номинальным значением тока.
Ⓐ Исправный предохранитель
Ⓑ Перегоревший предохранитель
Внимание
Не пытайтесь отремонтировать перегоревший предохранитель или заменить его предохранителем другого цвета или имеющим другое значение силы тока. Это может привести к возгоранию из-за перегрузки проводки.
6. Проверьте, нормально ли работает электрическое устройство.
Внимание
Если запасной предохранитель с таким же значением тока вскоре снова перегорает или электрическое устройство по-прежнему неисправно, это может свидетельствовать о серьезной неисправности электрической системы автомобиля. В этом случае следует немедленно обратиться в официальный сервисный центр.
Блок предохранителей в передней панели
Примечание
Символом * отмечены опциональные компоненты. Ориентируйтесь на конфигурацию вашего автомобиля 
№ п/п
|
Защищаемая цепь
|
Номинальный ток (A)
|
F101
|
* АКБ блока HCU
|
15
|
F102
|
Блок управления системой климат-контроля, дат- чик дождя и освещенности
|
10
|
F103
|
Сетевой шлюз, выключатель стоп-сигнала
|
5
|
F104
|
Вентилятор
|
40
|
F105
|
Разъем USB с функцией зарядки
|
7,5
|
F106
|
Обогрев рулевого колеса
|
15
|
F107
|
Электророзетка в зоне переднего ряда сидений
|
15
|
F108
|
Цепь IG1 в моторном отсеке
|
15
|
F109
|
Резервный
|
—
|
F110
|
Блок KBCM 1
|
15
|
F111
|
Блок KBCM 2
|
15
|
F112
|
Преобразователь постоянного тока (400 Вт)
|
40
|
F113
|
* Система беспроводной зарядки, * проекционный дисплей
|
7,5
|
F114
|
Внутреннее освещение
|
10
|
F115
|
Резервный
|
—
|
F116
|
Отпирание замка передней левой двери
|
15
|
F117
|
Преобразователь постоянного тока (200 Вт)
|
30
|
F118
|
Электророзетка в зоне заднего ряда сидений
|
15
|
F119
|
Разъём диагностики
|
10
|
F120
|
* Система мониторинга задней и боковых зон, * контроллер комфортной подсветки салона
|
15
|
F121
|
Подушки безопасности
|
7,5
|
F122
|
Мультимедийная система, усовершенствованные системы помощи водителю, система климат- контроля
|
10
|
F123
|
Резервный
|
—
|
F124
|
Центральный замок
|
15
|
F125
|
Электронный селектор переключения передач, цепь IG, комбинированный переключатель, цепь IG
|
5
|
F126
|
Усилитель мощности 1
|
15
|
F127
|
Усилитель мощности 2
|
15
|
F128
|
Мультимедийная система, комбинация приборов
|
10
|
F129
|
Шторка светового люка
|
25
|
F130
|
Аудиосистема
|
25
|
F131
|
Монитор в сборе
|
15
|
F132
|
Резервный
|
—
|
F133
|
Модуль передней левой двери, стеклоподъемник передней левой двери
|
25
|
F134
|
Модуль передней левой двери, стеклоподъемник передней правой двери
|
25
|
F135
|
Контроллер переключения передач
|
30
|
F136
|
Резервный
|
—
|
F137
|
Резервный
|
—
|
F138
|
Резервный
|
—
|
F139
|
Резервный
|
—
|
F140
|
Блок управления прицепом 1
|
15
|
F141
|
* Система управления аккумуляторной батареей, преобразователь постоянного тока
|
10
|
F142
|
Зарядное устройство
|
15
|
F143
|
Блок управления прицепом 2
|
15
|
F144
|
Регулировка положения сиденья
|
30
|
F145
|
Подогрев передних сидений
|
20
|
F146
|
Резервный
|
—
|
F147
|
Разъем прицепа
|
20
|
F148
|
Задний люк с электроприводом
|
30
|
F149
|
Переключатели стеклоподъемников передних дверей, инвертор (220 В)
|
25
|
F150
|
Блокировка дифференциала 1
|
25
|
F151
|
Подогрев задних сидений
|
20
|
F152
|
Контроллеры ручек дверей, контроллер системы контроля давления воздуха в шинах, блок управления системой кругового обзора
|
7,5
|
F153
|
Контроллер системы полного привода
|
20
|
F154
|
Блокировка дифференциала 2
|
25
|
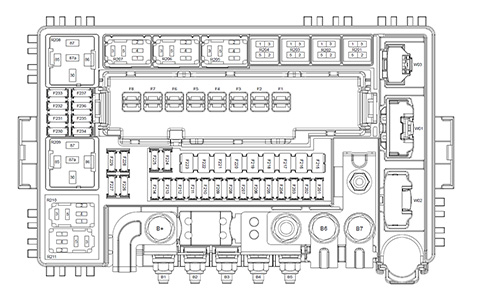
Блок предохранителей в моторном отсеке

№ п/п
|
Защищаемая цепь
|
Номинальный ток (A)
|
B1
|
Блок предохранителей в передней панели
|
125
|
B2
|
Вентилятор
|
60*/80*
|
B3
|
Система EPS
|
80
|
B4
|
Жидкостный насос системы охлаждения двигателя
|
60
|
B5
|
Резервный
|
—
|
F1
|
Главное реле 2
|
15
|
F2
|
Главное реле 3
|
15
|
F3
|
Звуковой сигнал
|
15
|
F4
|
Очиститель ветрового стекла
|
20
|
F5
|
Омыватель стекол
|
15
|
F6
|
Компрессор / насос отопителя
|
15
|
F7
|
Главное реле 1
|
10
|
F8
|
Главное реле 4
|
20
|
F201
|
Интеллектуальный блок управления
|
25
|
F202
|
Резервный
|
—
|
F203
|
TCU 1
|
25
|
F204
|
Резервный
|
—
|
F205
|
TCU 2
|
25
|
F206
|
* Разъем прицепа 1
|
30
|
F207
|
* Разъем прицепа 2
|
30
|
F208
|
Интеллектуальный блок управления 4
|
25
|
F209
|
Резервный
|
—
|
F210
|
Постоянное напряжение, ЭБУ
|
15
|
F211
|
Интеллектуальный блок управления 1
|
30
|
F212
|
Стартер
|
30
|
F213
|
Резервный
|
—
|
F214
|
Резервный
|
—
|
F215
|
ESP1
|
40
|
F216
|
ESP2
|
40
|
F217
|
* Обогрев ветрового стекла с левой стороны 1
|
40
|
F218
|
Резервный
|
—
|
F219
|
Резервный
|
—
|
F220
|
Резервный
|
—
|
F221
|
* Обогрев ветрового стекла с правой стороны 2
|
40
|
F222
|
Резервный
|
—
|
F223
|
Интеллектуальный блок управления 3
|
30
|
F224
|
Резервный
|
—
|
F225
|
Резервный
|
—
|
F226
|
ECU IG1
|
10
|
F227
|
Резервный
|
—
|
F228
|
Обратная связь при запуске
|
5
|
F229
|
* Нагрев форсунок
|
10
|
F230
|
Резервный
|
—
|
F231
|
Резервный
|
—
|
F232
|
Резервный
|
—
|
F233
|
Резервный
|
—
|
F234
|
Резервный
|
—
|
F235
|
Резервный
|
—
|
F236
|
Резервный
|
—
|
F237
|
Резервный
|
—
|
№ п/п
|
Наименование реле
|
R201
|
Резервный
|
R202
|
Резервный
|
R203
|
Резервный
|
R204
|
Резервный
|
R205
|
Реле цепи коробки передач
|
R206
|
* Реле разъема питания прицепа
|
R207
|
Пусковое реле
|
R208
|
* Реле обогрева ветрового стекла с левой стороны 1
|
R209
|
* Реле обогрева ветрового стекла с правой стороны 2
|
R210
|
Резервный
|
R211
|
Резервный
|